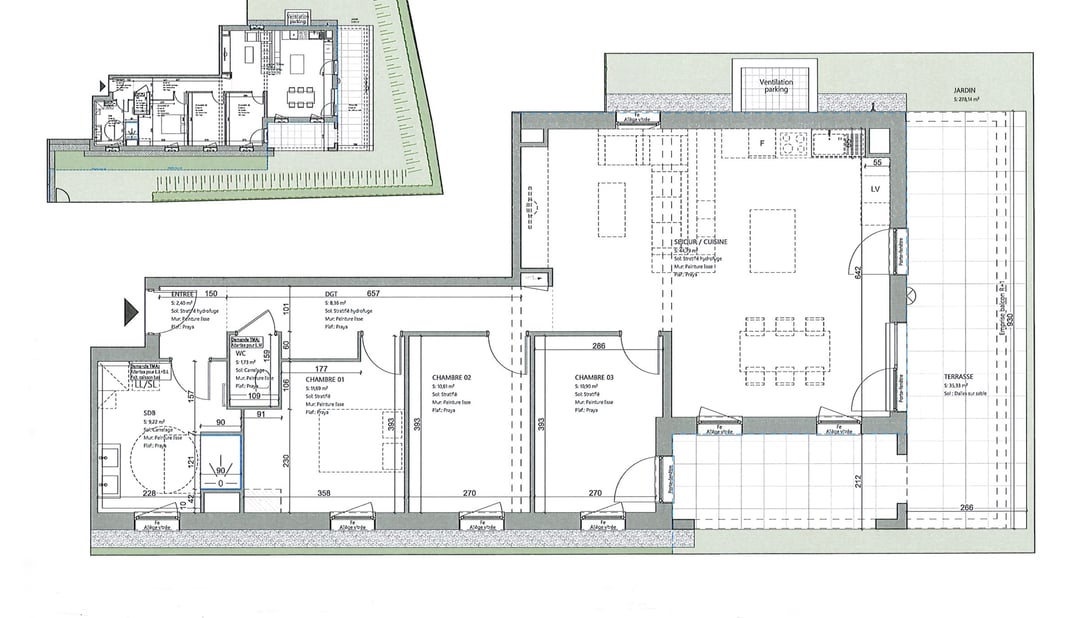
Particuliers, vous faites l'acquisition d'un logement sur plan. L'agencement des pièces doit correspondre à votre cahier des charges. Cette étape est déterminante pour l'optimisation de l'espace et nécessite la vision d'un professionnel de l'aménagement. ESPACE CONCEPTION est le lien entre votre habitat et le promoteur qui, à ce jour, vous livre une surface neutre, non personnalisé.
Promoteurs, vous vendez une surface d'habitation que votre client souhaite personnaliser. Cette étape est chronophage et vous n'avez pas forcément les réponses pour optimiser les espaces. Notre expertise est un plus pour vos clients qui peuvent nous soumettre leurs cahier des charges pour que vos services techniques actualisent les plans après notre réflexion.
Étapes de l'accompagnement :
Les souhaits du client :
Un linéaire d'éléments bas, accessible coté cuisine, est le soubassement d'une séparation-bibliothèque. Le plan snack pour le quotidien et surveiller les devoir des enfants. Des éclairages sont prévus à l'aplombs des postes de travail, îlot compris.
Une bibliothèque ajourée remplace la cloison. La 4ème chambre devient le salon, l'espace libéré dans la pièce à vivre reçoit l'îlot et la table de s-à- manger. La biblio. intègre des fileurs Led sur variateurs, ambiance tamisée ou soirée lecture. Un PC a charger ? Le bout de canapé cache des prises.
Le bas vasque fourni est complété d'un élément bas, entre les 2 un accroche-serviettes. Meuble haut, colonnes sol-plafond coté douche et en angle complètent le rangement, on peut y prévoir la niche "table à repasser", les peignoirs suspendus, le stock de serviettes propres, etc...
Des penderies superposées doublent la capacité, l'espacement entre étagères est mobile et s'adapte aux bottes d'hiver et baskets d'été. L'équipement se personnalise. Range-chaussures coulissants, tiroirs (gants, bonnets, écharpes). Etc... Fermeture amortie et silencieuse.
La penderie pour vêtements longs est réduite pour laisser place aux étagères et 1/2 penderie plus utilisés. Chaque client défini son besoin. Tiroirs compartimentés ou non, porte-pantalons, ceintures, cravates, foulards, etc.... Fermeture amortie et silencieuse.
Un placard à vêtements, jouets, affaires scolaires. Bureau simple ou de forme originale, rangements hauts, étagères murales, zone pour épingler des photos, tiroir sous le lit, coloris aux goûts de votre enfant ou intemporels. Votre enfant se sens bien chez lui.
Pour permettre la bonne réalisation du projet Espace Conception fourni toutes les indications indispensables :
Le client a obtenu ce qu'il voulait sans subir stress et déceptions. Le promoteur a délégué à Espace conception le travail énergivore d'écoute et de modification du plan. Beaucoup moins d'aller-retour client-promoteur. Espace Conception a réalisé un très bel intérieur en faisant ce qu'elle fait de mieux, optimiser l'espace.
RESULTAT : Gagnant - Gagnant - Gagnant.
Tarif de la prestation :
1500,00 € TTC - TVA 20 %
Au dessus de 120 m2 : 15 € TTC le m2 supplémentaire
En dessous de 70 m2 : 1200 € TTC
Pour toute commande de meubles à partir de 20 000 € HT, 50% du prix de la prestation sera déduit du solde de votre commande*.
*Si vous nous êtes adressé par votre promoteur ou constructeur c'est 100 % de la prestation qui sera déduit du solde de votre commande.
